Свет, Элегантность и Комфорт
SL 38 - оконно-дверная система, объединяющая в себе максимальную элегантность, строгость линий, энергосбережение и легкость производства. Система обладает высокими изоляционными свойствами и имеет внешний облик "под сталь", имеет сверхтонкий профиль и улучшенные энергосберегающие характеристики, выступая тем самым в качестве привлекательной альтернативы системе CS 38-SL. Система идеально подходит для современной архитектуры.
SL 38 - оконно-дверная система, объединяющая в себе максимальную элегантность, строгость линий, энергосбережение и легкость производства. Система обладает высокими изоляционными свойствами и имеет внешний облик "под сталь", имеет сверхтонкий профиль и улучшенные энергосберегающие характеристики, выступая тем самым в качестве привлекательной альтернативы системе CS 38-SL. Система идеально подходит для современной архитектуры.
SL38 доступна в трех уникальных вариантах дизайна: классический, кубический и железный. Она идеально подходит для новых зданий, фасады которых пропускают внутрь много света. Она также позволяет вдохнуть новую жизнь в старые оранжереи, позволяя сохранить для посетителей их винтажный внешний вид. Система также используется в проектах реконструкции, где требуется замена стальных рам. Такие профили в сочетании с минимализмом в архитектуре придают привлекательность промышленным зданиям.
Серия Slim Line 38 имеет высокий уровень изоляции в сочетании с ультра-тонкими профилями, что позволило улучшить тепловые характеристики. Технология доступна в следующих вариантах: неподвижный, поворотный и поворотно-наклонный со значениями Uf до 2,3 Вт/м²K (1,9 Вт/м²K для варианта с высокой изоляцией HI). Система подходит как для одно- , так и для двухкамерного остекления без ущерба во внешнем виде.
| Properties | |
| Min. Visible width frame: inward opening | 33,5 mm |
| Min. Visible width vent: inward opening | 21,5 mm |
| Min. Visible width frame-vent: inward opening | 67 mm |
| Min. Visible width frame: outward opening | 29 mm |
| Min. Visible width vent: outward opening | 60,5 mm |
| Min. Visible width frame-vent: outward opening | 80 mm |
| Min. Visible width T-profile | 48 mm |
| Overall system depth frame | 2200 mm |
| Overall system depth vent | 1600 mm |
| Max. weight element | 170 kg |
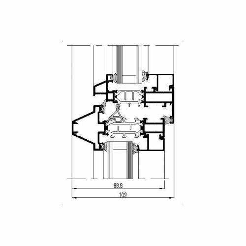
| Overall system depth frame | 99 mm |
| Overall system depth vent | 86 mm |
| Rebate height | 13,5 mm |
| Min. Glass thickness | 16 mm |
| Max. Glass thickness | 55 mm |
| Min. Glass thickness vent | 16 mm |
| Max. Glass thickness vent | 55 mm |
| Glazing method | Dry glazing with EPDM or neutral silicones |
| Thermal break | Omega and/or hollow chamber –shaped fibreglass reinforced |
| Performance | |
| Comfort | |
| Air tightness max. test pressure | 4 (600 Pa) |
| Water tightness | 9A (600 Pa) |
| Wind load resistance | C4 (1600 Pa) |
| Acoustic performance | 45 dB |
| Security | |
| Burglar resistance | RC 2/WK 2 WK2 |
| Energy | |
| Thermal insulation(Uf) | 1,9 W/m²K |
